Bagi teman-teman yang sudah lama di Bandung tentunya mengenal sebuah masjid di Jalan Cipaganti, Bandung, yang sekarang menjadi jalan Raden A.A. Wiranatakusumah. Masjid Raya Cipaganti awalnya bernama Masjid Kaum Cipaganti, merupakan masjid pertama sekaligus tertua yang dibangun di wilayah Bandung Utara. Berdiri di daerah sekitar yang merupakan Een Western Enclave atau daerah pemukiman elite khusus bangsa Eropa dan bangsawan pribumi.
Sejarah Kota Bandung

peta jalan Cipaganti
Kota Bandung dulu pernah direncanakan oleh Pemerintah Belanda sebagai pusat pemerintahan, sedangkan Batavia sebagai pusat perdagangan.
Itu sebabnya di kota Bandung ada ratusan bangunan peninggalan zaman Belanda dengan desain arsitektur yang khas.
Perencanaan kotanya sendiri terbagi menurut wilayah-wilayah rasial. Khusus di wilayah Bandung utara (di utara rel kereta api) diperuntukkan untuk orang Belanda atau orang yang bekerja untuk pemerintah/perkebunan milik orang Belanda.
Sedangkan wilayah selatan rel kereta api, untuk pribumi, Pecinan, Kauman (orang Arab, sekitar Masjid Agung Bandung), dan wilayah-wilayah lain sesuai asal daerah. Misalnya Babakan Surabaya, Babakan Ciamis, dan lain-lain.
Kalau lihat di peta kota Bandung, ada beberapa wilayah di utara kota Bandung, yang tata letak perumahannya tertata rapi dan rumah-rumahnya pun didesain besar dengan halaman luas.
Contohnya perumahan jalan Cipaganti dan sekitarnya, Dago (Jl. Ir. H. Juanda) dan sekitarnya, Riau (Jl. LL RE Martadinata) dan sekitarnya.
Nah, Masjid Raya Cipaganti ini berada di wilayah Bandung Utara, yang dulu merupakan komplek pemukiman bangsa Eropa. Masjid Raya Cipaganti di desain oleh Prof. C.P. Wolff Shoemaker, seorang arsitek Belanda yang menjadi Profesor di ITB Bandung.
Sejarah Masjid Raya Cipaganti

Foto lama Masjid Raya Cipaganti, sumber: bandungbergerak.id
Bangunan dengan luas tanah 2675 m2 (dua ribu enam ratus tujuh puluh lima ) ini, luas bangunannya 1.067 m2 (seribu enam puluh tujuh). Tanahnya merupakan tanah wakaf Ibu Oerki, istri Tuan Ursone, seorang pengusaha asal Itali yang mengembangkan bisnis di Lembang.
Kekhasan dari bangunan Masjid Besar Cipaganti adalah lokasinya yang berada pada posisi tusuk sate. Bagi orang Eropa, posisi bangunan tusuk sate adalah favorit, namun tidak menurut kepercayaan Tionghoa. Untuk mengamati lokasi bangunan ala Eropa ini, bisa bila dilihat dari Jalan Sastra, sebuah jalan yang menghubungkan Jalan Cihampelas dan Jalan Cipaganti.
Masjid Raya Cipaganti pada masa awal pembangunannya memiliki bentuk denah serta bentuk fasad barat dan timur yang simetri sempurna.
Hal ini merupakan salah satu ciri khas C. P. Wolff Schoemaker dalam merancang massa bangunan pada setiap karyanya.
Denah pada bangunan Masjid Raya Cipaganti dirancang menggunakan dua modul utama yaitu 2,5 meter dan 3 meter, sementara ketinggian elemen bangunan yang terlihat pada rancangan fasadnya didominasi dengan modul kelipatan 1,5 meter.
Dari foto-foto lama zaman Belanda, aslinya masjid ini merupakan bangunan segi empat sama sisi yang utuh dilengkapi mihrab. Atapnya tajug (atap susun) dan di bagian dalam ada 6 kolom kayu berukir penyangga atap tajug.
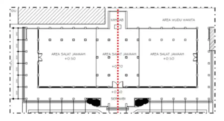
Perkembangan selanjutnya, setelah mengalami beberapa kali renovasi di masa pemerintahan Republik Indonesia dan beberapa walikota Bandung, masjid ini diperluas ke sisi utara dan selatan sehingga berbentuk empat persegi panjang. Dinding sisi utara dan selatan dibongkar dan atap ditambahkan di samping kiri dan kanan.
Bagian tengah masjid awal, sekarang merupakan bangunan cagara budaya dan untuk membedakannya dengan area perluasan, bagian tengah lebih tinggi daripada kanan-kirinya.
Karena masjid ini terletak di tepi jalan maka ada tabir khusus yang diletakkan di depan gerbang pintu masuk masjid.
Denah pertama rancangan C. P. Wolff Schoemaker, sumber: jurnal lingkungan binaan
Denah dan tampak bangunan setelah perluasan
Detail Masjid Raya Cipaganti

Tampak depan
Menariknya, masjid ini didesain oleh orang Belanda dan dibangun tahun 1933, sebelum Indonesia merdeka.
Penelitian masih terus menerus dilakukan, apalagi tidak ada peninggalan dokumen yang berkaitan dengan rancangan masjid ini. Hal ini disebabkan rumah arsiteknya terbakar habis sehingga tidak ada dokumen yang tersisa.
Kalau dari ide desain masjid, bisa jadi ada pengaruh dari Masjid Agung Demak, merupakan masjid mula di pulau Jawa yang dibangun sudah sejak tahun 1400-an.
Terutama dari bentuk atap tajuk bersusun tiga yang sering dipakai pada atap masjid lainnya waktu itu.
Masjid Raya Cipaganti memiliki empat ruang utama, yaitu lobi, serambi masjid, ruang ibadah, serta mihrab.
Lobi pada bangunan masjid terletak di sisi timur masjid tepat di dekat entrance masjid, ruangan ini merupakan ruang transisi dari ruang luar menuju ruang dalam yang dibatasi dinding sepanjang 4 meter dan tinggi 2 meter.

Ruang shalat
Pada sisi utara, selatan, dan timur bangunan masjid dikelilingi dengan serambi yang berfungsi sebagai ruang transisi dari ruang luar menuju ruang ibadah. Serambi ini juga berfungsi sebagai area transisi dari area wudu di luar bangunan masjid menuju ruang ibadah di dalam masjid.
Sementara itu, ruang ibadah dan mihrab pada masjid berfungsi sebagai pusat kegiatan ibadah bagi umat Islam. Mihrab terletak pada sisi paling barat bangunan masjid merupakan tempat imam memimpin sholat dan menyampaikan khotbah.
Masjid ini mempunyai fasilitas yang cukup memadai seperti toilet, tempat wudhu, tempat penitipan barang, toko yang menjual aneka barang, termasuk penyediaan sarung bagi laki-laki ataupun mukena bagi wanita.
Penutup

Tampak depan Masjid Raya Cipaganti
Di Bandung banyak bangunan ex kolonial Belanda atau dirancang oleh arsitek Belanda yang telah mengalami restorasi, renovasi, atau alih fungsi. Seperti halnya Masjid Raya Cipaganti, yang boleh dibilang bentuknya berbeda daripada desain aslinya. Walaupun demikian secara fungsi masjid ini masih digunakan hingga sekarang.
Apalagi masjid di Indonesia tidak hanya sebagai rumah beribadah saja, tetapi banyak kegiatan yang berhubungan dengan kemaslahatan umat dilakukan juga di sini.
Di bulan Ramadhan suasana masjid ini menjadi lebih meriah dengan kegiatan kegiatan dakwah, mulai dari pesantren ramadhan, pekan studi Islam, bazaar dan sebagainya. Tak lupa juga masjid ini menyediakan buka puasa bagi para jemaah, tidak saja sajian ringan atau biasa disebut taβjil tapi juga menyediakan makan malam lengkap bakda sholat magrib, berkat sokongan penuh dari warga sekitar masjid.
Semoga bermanfaat.
Sumber:
https://bandungbergerak.id/article/detail/2316/ngulik-bandung-masjid-cipaganti
Dewi Retno Prameswari, Arif Sarwo Wibowo, Fauzi Mizan Prabowo Aji; 2021; Inventarisasi Bangunan Cagar Budaya: Masjid Raya Cipaganti Karya C. P. Wolff Schoemaker; Jurnal Lingkungan Binaan Indonesia.
https://www.cnnindonesia.com/nasional/20220407213138-20-781920/keindahan-arsitektur-eropa-jawa-di-masjid-besar-cipaganti/
https://www.goodnewsfromindonesia.id/2021/04/14/masjid-cipaganti-tertua-di-bandung-utara-dan-sempat-dikunjungi-soekarno





Selalu menyenangkan setiap kali berkunjung ke Majid. Gak tahu kenapa, adem aja rasanya pas lagi di dalam masjid. Apalagi kalau masjidnya seperti Masjid Raya Cipaganti ini, punya nilai sejarah sekaligus. Semoga bisa berkunjung.
Saat membaca namanya, saya langsung teringat travel Cipaganti Bandung. ternyata ada juga Cipaganti yang merupakan masjid tertua di Bandung utara ya. Bangunan aslinya memang sudah menarik, kemudian adanya penambahan bangunan yang simetris. Semoga kalau ke Bandung, bisa mampir ke masjid Cipaganti,
Seingat saya Cipaganti itu nama travel. Ternyata itu nama salah satu tempat di Bandung ya? Bandung memang banyak memiliki bangunan yang bersejarah, tapi sangat terawat dan masih bisa digunakan. Kapan-kapan jika ke Bandung, bolehlah mampir ke Masjid Cipaganti ini.
kalau melihat desain dan kekuatan bangunan buatan tempo dulu sungguh mencengangkan. Teknologi belum mumpuni, bahan bangunan belum sehebat sekarang tpi daya tahan dan arsitekturnya masih keren sampe sekarang
Waahh ternyata cukup panjang juga yaahh sejarah dari cipaganti ini, benar-benar yahh bandung. Btwe bagus juga nih arsitekturnya, terkesan kokoh warna interiornya juga adem, semoga kalau ke bandung bisa deh mampir ke masjid ini.
Ternayata ada bangunan megah bersejarah di daerah sini. Aku dulu sering ke Bandung karena kakakku kos di Cihampelas, dan cipaganti sebelahnya ya. Bangunan dengan arsitektur seperti ini harus selalu dirawat dan dilestarikan
Bagus desainnya ya, dengan desain terbuka seperti itu sepertinya sejuk udara di dalam Masjid
Dan ternyata sejarahnya cukup panjang, walaupun dibangun oleh arsitek Belanda tapi desainnya Indonesia banget
Perluasan Masjid Cipaganti sangat terasa bedanya dengan yang sebelumnya. Jauh lebih luas, dan arsitekturnya jadi makin lebih menarik, senang lihat model masjid melebar. Terasa luas banget jadinya
Ramadan emang paling seru kalau bisa safari masjid
Menikmati masjid cantik bersejarah seperti Masjid Cipaganti ini pasti seru ya
Sambil ngabuburit
Wah masjidnya udah ada sejak zaman Belanda tapi bertahan sampai sekarang ya, dan arsitekturnya juga bagus. Bisa sekalian belajar sejarah sekaligus ibadah saat ke sana.
Wah ada tokonya juga ya.
MasyaAllah ini masjidnya terawat hingga sekarang. Apalagi bagian dalamnya terasa nyaman, padahal daku baru lihat fotonya aja, kebayang kalau langsung datang ke sana bikin khusuk ibadah juga ya kak
Ga menyangka masjid Cipaganti dirancang oleh warga Belanda. Emg arsitek Belanda keren2 sih meski ada gaya arsitektur dari Masjid Agung Demak.
Buktinya, bangunan tersebut kokoh sampe skrg. Masih berfungsi bagus dan mempertahankan desain utamanya.
Semoga pas jalan2 ke Bandung, bisa mampir ke masjid bersejarah ini deh.
Waaa nambah ilmu pengetahuan soal Masjid Kaum Cipaganti yang ternyata adalah masjid pertama sekaligus tertua yang dibangun di wilayah Bandung Utara. Di bangunnya sama orang Belanda pula. Tahun 1933. Bener-bener bersejarah masjidnya
design dalam masjidnya unik ya yang dibagian mimbar. aku liat bangunan luarnya sekilas inget Masjid Agung di Solo
MasyaAllah kak Hani sampe dapet desain arsitekturnya lhoo, keren banget! Baca artikel ini jadi tahu masjid pertama yang berdiri di Bandung, aaah.. suatu saat harus mampir nih kalo ke Bandung
Masya Allah sejarahnya π semoga bisa ada waktu da kesempatan berkunjung kesana π ditengah banyaknya masjid-masjid baru bermunculan, masjid bersejarah begini semoga tetap terawat dan berfungsi ya π
Belum pernah berkunjung ke Masjid ini, saya suka sekali dengan desain masjid-masjid yang zaman dahulu ataupun yang modern. Selalu mempunyai keunikan tersendiri apalagi kalau misalkan punya sejarah khusus, semoga suatu hari bisa berkunjung ke masjid Cipaganti ini
Masjid tempatku menuntut ilmu setiap Selasa pagi nih..
Biasanya yang isi Ustadz Abu Haydar AS-Sundawi hafizahullah. Dan sebelum kajian, biasanya aku sama temenku mamam mie depan Masjid Raya Cipaganti yang lejen. Rasanya enak, ayamnya banyak dan harganya terjangkau.
Masjid2 yang dibangun pada zaman kependudukan Belanda emang rata2 udah direnov dan beda dengan aslinya karena masih digunakan. Beda kayak gereja biasanya masih kelihatan bentukan aslinya Meskipun udah dipugar
seumur-umur belum pernah masuk ke masjid raya Cipaganti ini, cuma pernah nyicipin mie ayam yang paling terkenal di sana. hehe. Ternyata ini termasuk masjid bersejarah ya di Bandung
Wah sering banget denger tentang masjid raya cipaganti tapi baru kali ini tahu kisah sejarah dibaliknya π